"Unser

Alltag

wird

zu

einem

wesentlichen

Teil

durch

die

Architektur

bestimmt,

die

uns

Tag

für Tag umgibt."

Jürgen Tietz | 1998
© Architekturbüro Amendt | Blumentalstraße 2 | D - 47798 Krefeld | 09|2024 | Impressum | Datenschutz
Willkommen auf unserem Webauftritt Informationen zu unserer Tätigkeit finden Sie unter den oben dargestellten Rubriken. Besuchen Sie auch unseren Instagram Account, um mehr Informationen zu erhalten.
Auswahl aktueller Projekte:

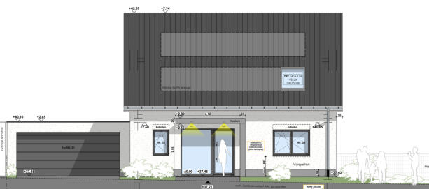
2023 - 2024

Neubau eines Einfamilienhauses mit Garage | 47839 Krefeld (Hüls)

Leistungsphasen 1 - 5 | private Bauherrschaft

Straßenansicht

2023 - 2024

Neubau eines Einfamilienhauses mit Garage | 47839 Krefeld (Hüls)

Leistungsphasen 1 - 5 | private Bauherrschaft

Straßenansicht