© Architekturbüro Amendt | Blumentalstraße 2 | D - 47798 Krefeld | 09|2024 | Impressum | Datenschutz
Geschosswohnungsbau Querschnitt realisierter Wohnbauprojekte

2016 - 2017 | Um- und Erweiterungsbau eines ehem. Wohngebäudes in ein Mehrfamilienhaus mit 6 Eigentumswohnungen

Projekt: Um- und Erweiterungsbau eines ehem. Wohngebäudes in ein Mehrfamilienhaus mit 6 Eigentumswohnungen und 6 PKW Stellplätzen (auf Tiefgaragendeck) bzw. in Tiefgarage Ort: 47800 Krefeld (Bockum) Uerdinger Straße 652 Wohnungsgrößen: 75 - 90 qm Planung: 2015 - 2016 Fertigstellung: Ende 2016 Leistungsphasen: 1 - 9
Vorderansicht | Bauantrag | 2015
Projekt: Neubau von 2 Mehrfamilienhäusern mit je 8 Eigentums- wohnungen, einer Tiefgarage mit 12 PKW Stellplätzen, 2 Garagen u. 2 oberirdischen PKW Stellplätzen sowie 2 Aufzugsanlagen Ort: 47800 Krefeld (Bockum) Buschstraße 278 u. 280 Wohnungsgrößen: 75 - 85 qm Planung: 2014 - 2015 Fertigstellung: Anfang 2016 Leistungsphasen: 1 - 9
Gartenansicht | 2016
Vorderansicht | 2016
Visualisierung | 2014
Vorderansicht | Bauantrag | 2014
Projekt: Um- und Erweiterungsbau eines ehem. Bürogebäudes in ein Mehrfamilienhaus mit 6 Eigentumswohnungen und 6 PKW Stellplätzen (überdacht durch ein Carport), sowie einer Aufzugsanlage Ort: 47839 Krefeld (Hüls) An der Roßmühle 17 Wohnungsgrößen: 85 - 100 qm Planung: 2013 - 2014 Fertigstellung: Ende 2014 Leistungsphasen: 1 - 9
Innenansicht | DG | 2014
Vorderansicht | 2016
Visualisierung | 2013
Vorderansicht | Bauantrag | 2013

2014 | Um- und Erweiterungsbau eines ehem. Bürogebäudes in ein Mehrfamilienhaus mit 6 Eigentumswohngen

Projekt: Neubau von 3 Mehrfamilienhäusern mit 3 - 6 Eigentumswohnungen, 10 integrierten PKW Garagen, 2 Garagen u. 4 oberirdischen PKW Stellplätzen, sowie einer Aufzugsanlage (im mittleren Haus) Ort: 47839 Krefeld (Hüls) Jerusalemstraße 21, 23 u. 25 Wohnungsgrößen: 70 - 80 qm Planung: 2012 - 2013 Fertigstellung: Ende 2013 Leistungsphasen: 1 - 9
Detail Eingang | 2017
Vorderansicht | 2017
Visualisierung | 2012
Vorderansicht | Bauantrag | 2012

2013 | Neubau von 3 Mehrfamilienhäusern mit jeweils 3 - 6 Eigentumswohnungen (15 WE gesamt)

Projekt: Neubau eines Mehrfamilienhauses mit 3 Eigentums- wohnungen, 3 integrierten PKW Garagen, sowie einer Aufzugsanlage Ort: 47839 Krefeld (Hüls) Hölschen Dyk 4 Wohnungsgrößen: 110 - 145 qm Planung: 2011 - 2012 Fertigstellung: Mitte 2012 Leistungsphasen: 1 - 9
Vorderansicht | 2013
Vorderansicht | 2013

2007 | Neubau eines Mehrfamilienhauses mit 7 Eigentumswohnungen

während der Bauzeit | 2011
Vorderansicht | Bauantrag | 2011

2012 | Neubau eines Mehrfamilienhauses mit 3 Eigentumswohnungen | Anbau an Bestand

Projekt: Neubau eines Mehrfamilienhauses mit 6 Eigentums- wohnungen, und 6 PKW Stellplätzen Ort: 47839 Krefeld (Hüls) Cäcilienstraße 4 Wohnungsgrößen: 70 - 80 qm Planung: 2009 - 2010 Fertigstellung: Ende 2011 Leistungsphasen: 1 - 9
Detail Dachgaube | 2011
Vorderansicht | 2012
Vorderansicht | Bauantrag | 2010

2011 | Neubau eines Mehrfamilienhauses mit 6 Eigentumswohnungen

Seitenansicht | 2011
Grundrissausschnitt | 2010
Projekt: Neubau eines Mehrfamilienhauses mit 8 Eigentums- wohnungen, einer Tiefgarage mit 8 PKW Stellplätzen, sowie einer Aufzugsanlage, Ort: 47839 Krefeld (Hüls) Fette Henn 35 Wohnungsgrößen: 80 - 105 qm Planung: 2007 - 2008 Fertigstellung: Mitte 2010 Leistungsphasen: 1 - 9
Detail Hauseingang | 2011
Vorderansicht | 2011
Während der Bauzeit | 2008
Vorderansicht | Bauantrag | 2011

2009 | Neubau eines Mehrfamilienhauses mit 8 Eigentumswohnungen

Vorderansicht | 2011
Projekt: Neubau eines Mehrfamilienhauses mit 7 Eigentums- wohnungen und Garagen, sowie einer Aufzugsanlage Ort: 47839 Krefeld (Hüls) Rektoratsstraße 48 Wohnungsgrößen: 90 - 125 qm Planung: 2006 - 2007 Fertigstellung: 2008 Leistungsphasen: 1 - 9
Detail Hauseingang | 2009
Vorderansicht | 2009
Rückansicht | 2009
Vorderansicht | Bauantrag | 2007

2006 | Neubau eines Mehrfamilienhauses mit 7 Eigentumswohnungen

Projekt: Neubau eines Mehrfamilienhauses mit 6 Eigentums- wohnungen und 6 PKW Stellplätzen Ort: 47839 Krefeld (Hüls) Klever Straße 45 Wohnungsgrößen: 40 - 75 qm Planung: 2006 - 2007 Fertigstellung: Ende 2007 Leistungsphasen: 1 - 9
Vorderansicht | 2009
Rückansicht | 2009
Bestand vor Neubau | 2005
Vorderansicht | Bauantrag | 2006
Projekt: Neubau eines Mehrfamilienhauses mit 6 Eigentums- wohnungen, sowie Garagen Ort: 47839 Krefeld (Hüls) Ringstraße 16 Wohnungsgrößen: 70 - 80 qm Planung: 2004 - 2005 Fertigstellung: 2006 Leistungsphasen: 1 - 9
Grundriss 1. OG | Bauantrag | 2006
Vorderansicht | 2015
Rückansicht | Bauantrag | 2006
Vorderansicht | Bauantrag | 2006

2005 | Neubau eines Mehrfamilienhauses mit 6 Eigentumswohnungen

Detail Hauseingang | 2015

2016 | Neubau von 2 Mehrfamilienhäusern mit je 8 Eigentumswohnungen (16 WE gesamt)

2016 - 2018 | Neubau von 3 Mehrfamilienhäusern mit je 5 Eigentumswohnungen (15 WE gesamt)

Projekt: Neubau von 3 Mehrfamilienhäusern mit je 5 Eigentums- wohnungen, einer Tiefgarage mit 18 PKW Stellplätzen, einem Parkdeck mit 12 PKW Stellplätzen sowie 3 Aufzugsanlagen Ort: 47800 Krefeld (Bockum) Uerdinger Straße 646, 648 u. 650 Wohnungsgrößen: 100 - 145 qm Planung: 2016 - 2017 Fertigstellung: Anfang 2018 Leistungsphasen: 1 - 9
Visualisierung | 2016
Vorderansicht | Bauantrag | 2015
Vorderansicht | 2018
Vorderansicht | 2018
Visualisierung Gartenansicht | 2022

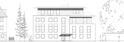
2021 - 2024 | Neubau von 2 Mehrfamilienhäusern mit insg. 19 Eigentumswohnungen

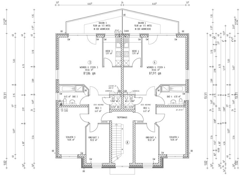
Projekt: Neubau von 2 Mehrfamilienhäusern mit insg. 19 Eigen- tumswohnungen, einer Tiefgarage mit 16 PKW Stell- plätzen und zwei oberird. PKW Stellplätzen Ort: 47809 Krefeld (Linn) Danziger Platz 2 Wohnungsgrößen: 58 - 145 qm Planung: 2021 - 2022 Fertigstellung: Mitte 2024 Leistungsphasen: 1 - 5 Bauherrschaft: Firma Novaform Deutschland GmbH

2021 - 2024 | Neubau von 2 Mehrfamilienhäusern mit insg. 19 Eigentumswohnungen

Vorderansicht | Bauantrag | 2022
Vorderansicht | 2024
Visualisierung | 2016